An der malerischen Küste der Ostsee wartet Ihre Traumwohnung auf Sie: im beliebten Seebad Heiligenhafen entstehen acht moderne 3- bis 4-Zimmer-Apartments mit Wohlfühlcharakter und im Einklang mit der Natur. Das preisgekrönte Architekturteam hat bei der Planung der Anlage viel Wert auf zeitloses Design, durchdachte Wohnkonzepte sowie eine maximale Qualität in punkto Großzügigkeit und Ausstattung gelegt, um den heutigen und auch zukünftigen Anforderungen gerecht zu werden. Die Apartments können sowohl als Hauptwohnsitz als auch als Zweitwohnung oder zur mittel- und langfristigen Vermietung z. B. als Serviced Apartment erworben werden. Die direkte Nähe zum modernen Senioren-Quartier EMVIA LIVING bietet zusätzliche Nutzungsmöglichkeiten.

Zeitgemäßes Design
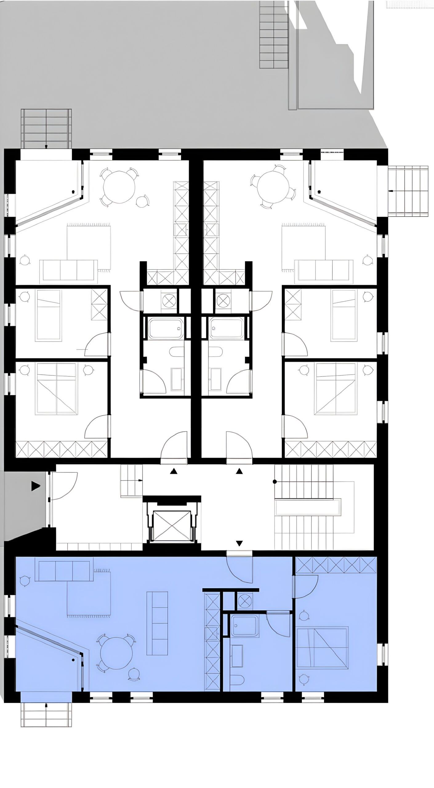
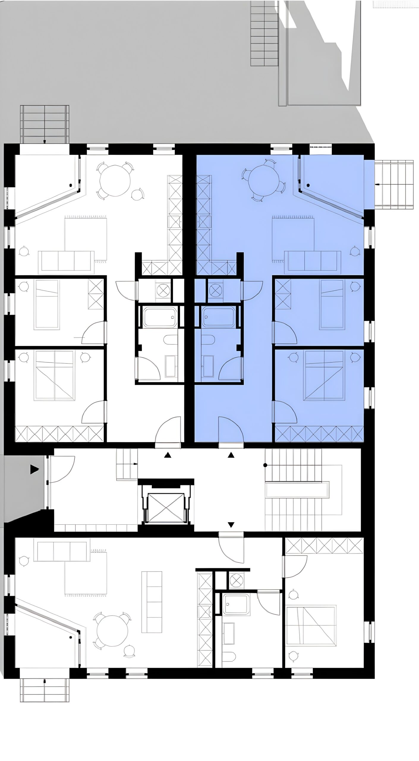
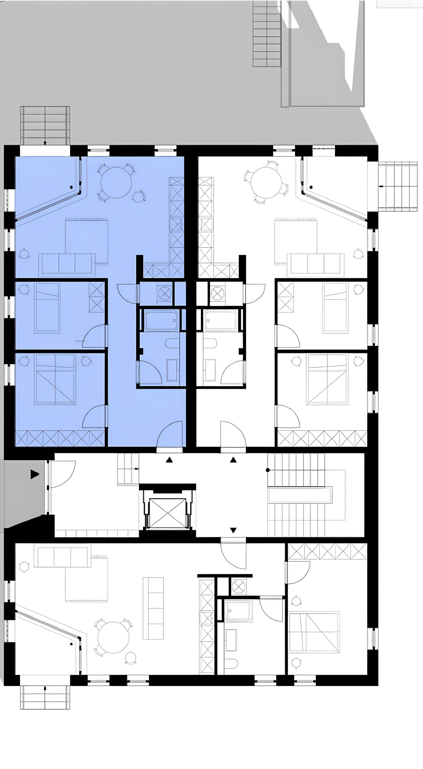
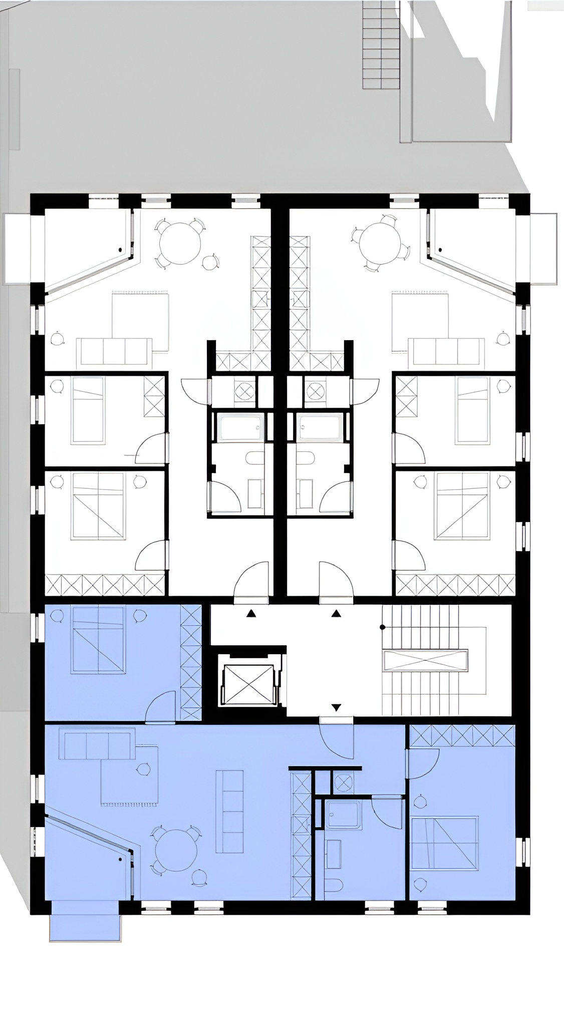
Das exklusive Neubauprojekt besteht aus acht einzigartig gestalteten 2 bis 5-Zimmer-Apartments mit einer Wohnfläche zwischen 67 m² und 114 m², die allen Ansprüche an zeitgemäßes Wohnen und modernes Design gerecht werden. Energetisch auf dem neusten Stand, hochwertig ausgestattet und technisch robust und zertifiziert werden die jeweils höchsten Standards bedient.
Der eigene Abstellraum im Keller sowie die Tiefgarage sind über einen Aufzug komfortabel erreichbar. Alle Apartments haben eine wettergeschützte Loggia mit einer Terrasse oder eine kleine Gartenfläche als individuellen Rückzugsort. Am höchsten Punkt in der näheren Umgebung gelegen, ergibt sich insbesondere aus den Penthäusern ein wunderbarer Ausblick.
Moderne Architektur
Das Objekt zeichnet sich durch seine nordisch-klare Architektur und eine exklusive Ziegelfassade aus, die nicht nur stilvoll, sondern auch wartungsarm, langlebig und nachhaltig ist. Sie verleiht dem Gebäude einen einzigartigen und unverwechselbaren Charakter, der sich harmonisch in die Umgebung einfügt.
Die einzelnen Apartments sind so konzipiert, dass sie Tageslicht und Frische in jedem Winkel Ihres neuen Zuhauses einfangen. Die modernen Designer-Fußbodenbeläge von SENSO® verleihen den Räumen einen anspruchsvollen und dennoch warmen Charakter. Die Badezimmer der einzelnen Wohnungen sind hochwertig und mit moderner Sanitärkeramik ausgestattet, die nicht nur funktional, sondern auch ästhetisch ansprechend ist. Außerdem sind ebenerdige Duschen verbaut, die neben einem hohen Komfort auch Barrierefreiheit und Sicherheit bieten.


Effizienzhaus A+
Das Objekt vereinigt die höchsten geltenden Energieeffizienzstandards nach GEG. Dies bedeutet nicht nur eine positive Auswirkung auf die Umwelt, sondern auch erhebliche Einsparungen bei den Energiekosten. Der nachhaltige Holzbau mit maximaler CO2-Bindung und die Luftwärmepumpe in Verbindung mit einer Photovoltaikanlage erlauben ein energieeffizientes Heizen. Barrierearme Türen und Grundrisse sind selbstverständlich – genau wie der Aufzug, der von der Tiefgarage direkt bis zur Wohnung führt. In der Tiefgarage sind auf Wunsch auch E-Ladestationen installierbar. Darüber hinaus gibt es einen Fahrradraum im Haus, der mit einem Stromanschluss für E-Bikes ausgestattet ist.
Heiligenhafen
– Das Sonnendeck der Ostsee
Willkommen in Heiligenhafen
Heiligenhafen – das „Sonnendeck der Ostsee“ – schafft es seit Jahren immer wieder ganz oben in die verschiedenen Beliebtheits-Rankings: schönste Kleinstadt, Naturparadies, idyllischer Yachthafen, Touristenmagnet, tolle Ganzjahresangebote, moderner Lifestyle, fancy – „Halli“, wie die Einheimischen liebevoll sagen, punktet auf allen Ebenen.
Maritimes Lebensgefühl
In Heiligenhafen verschmelzen die Schönheit der maritimen Umgebung, zeitgemäßer Wohnkomfort und Lebensqualität auf beeindruckende Weise.
Perfekte Infrastruktur
Heiligenhafen beeindruckt ebenso durch seine gute Infrastruktur mit Einkaufsmöglichkeiten, Restaurants, Schulen, Ärzten und weiteren Einrichtungen des täglichen Bedarfs – ideale Bedingungen für eine komfortable Lebensgestaltung.
Stadtentwicklung & Perspektive
Durch eine gezielte Stadtentwicklung sind in den letzten Jahren viele touristische Highlights entstanden, und dieser Aufschwung ist ungebrochen.
Investition mit Zukunft
Auch die bevorstehende Fertigstellung des Fehmarnbelt-Tunnels wird die wirtschaftliche und touristische Attraktivität der gesamten Umgebung steigern – und damit die Nachfrage nach attraktivem Wohnraum. Ihre neues selbstgenutztes Apartment ist also gleichzeitig eine zukunftssichere und rentable Geldanlage!
Ein Konzept für Generationen
Eine gesündere und bewusstere Lebensweise ermöglicht immer mehr Menschen eine nie dagewesene Vitalität und Lebensqualität bis ins hohe Alter. Um diese Qualität genießen zu können, ist die Auswahl eines funktionell gestalteten Zuhauses mit dem umfassendem Komfort, dem Versorgungsangebot und der Sicherheit einer florierenden Kleinstadt ein wesentlicher Garant für eine gelungene und unabhängige Lebensführung. Auch die Natur liegt wenige Minuten zu Fuß oder mit dem Fahrrad vor der Tür. Die Steilküste mit den wundervollen Blicken über die Ostsee und die hügelige Landschaft bieten eine einzigartige Landschaft.
Unabhängig vom Alter kann jeder Mensch in die Situation geraten, Unterstützung von anderen zu benötigen. Für Sie als direkter Nachbar besteht die Möglichkeit – nach Absprache mit EMVIA LIVING – das umfassende Angebot dieses modernen Senioren-Quartiers partiell mitzunutzen; sei es das Restaurantangebot, die Teilnahme an ausgewählten kulturellen und gemeinschaftlichen Aktivitäten oder auch die Wahrnehmung bestimmer Pflege- oder Therapieangebote.
Gestaltet aus Erfahrung
Erleben Sie modernes Wohnen im modernen Apartmenthaus LÜW, entworfen und gebaut vom preisgekrönten Team hinter dem Erfolgsprojekt De ole School. Hier treffen zeitlose Architektur, nachhaltige Bauprinzipien und durchdachte Wohnkonzepte aufeinander. Lassen Sie Ihr Zuhause zu einem Design-Statement werden. Exklusiv. Individuell. Einzigartig.


Hochwertige Ausstattung
Von der Architektur über die technische Ausstattung bis zum Interior
Auf Wunsch gestaltet das Hamburger Studio Deli Ihre individuelle Innenarchitektur – stilvoll, hochwertig und perfekt abgestimmt auf Ihre Bedürfnisse. Lassen Sie Ihr Zuhause zu einem Design-Statement werden.
Apartments









Highlights LÜW-71
Erleben Sie ein Zuhause, das höchsten Ansprüchen gerecht wird – mit einer Qualität, die in jedem Detail sichtbar und fühlbar ist. Entdecken Sie Wohnräume, die nicht nur ästhetisch überzeugen, sondern auch ein komfortables und zeitgemäßes Lebensgefühl vermitteln.









